• Skip to main content

Bryan Schutt

406-250-9963

  • Home
  • Portfolio
    • Commercial Projects
    • Residential Projects
  • About
    • Profile
    • Approach
    • References
  • Contact Bryan

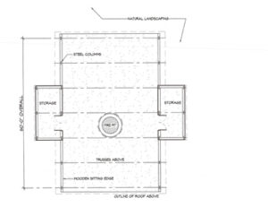
Unbuilt Pavilion

This pavilion was designed for summer picnics and receptions, then to be flooded for ice skating in the winter. A metal roof atop trusses of steel, wood, and cable evoked the locomotive stations and industrial sheds of old. Unfortunately, this design was never built.

I look forward to bringing these inventive details and strong forms to an appropriate project soon.

 

Other Portfolio

  • Home
  • Portfolio
  • About
  • Contact Bryan

Bryan Schutt Architects Kirkland WA  |  Kalispell MT

E-Mail
Telephone




Click Here Designs, LLC

Send a Message
Your message has been sent. Thank you!
Submit